Previous | Next | Discuss :: Free Advice (General Feng Shui)


Topic: mountain star activation, 1 Attachments
Conf: Discuss :: Free Advice (General Feng Shui), Msg: 11719
From: Anon (Hidden from Privacy)
Date: 8/5/2002 01:43 AM

Hi Cecil,

We have now completed our renovation and moved in on an auspicious date picked by Robert.

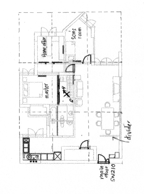
I do have some questions needing your advise after the move in. I wanted to activate mountain star but do not know which is/are the most appropriate sector to do so. Especially whether the main door is consider the frontage or is the windows portion in the living hall the frontage.

Under 20 years analysis, the mountain stars are found in the center sector [1/4 base 7], SW [7/7 base 4](where store, small part of dinner and main door) and in the study/home office of North [6/8 base 3]sector.

I would also like to know if there are any wrong placement of furniture in terms of form and shape theory.

I have attached my new layout as well as my the chart summary. Would greatly appreciate your kind assistance.

Best regards,
Serene

Click to open!houseplan(1).jpg
house furniture layout plan (148,890 bytes)

Copyright 1996-onwards Geomancy.Net, Cecil & Robert Lee. All Rights Reserved.

International Copyright & Intellectual Property Rights Notice
All messages posted TO THIS SITE which includes this forum and other contents made accessable by us to the public cannot be copied; reproduced; recompiled; stored in a retrieval system; or transmitted, in any form or by any means; electronic; mechanical; photocopying; recording; or otherwise. - Learn more

Please kindly contact us at support@geomancy.net. if you should encounter any breach of Copyright and Intellectual Property rights. Thank you in advance!

 

 

Back to Feng Shui at Geomancy.Net

 [ Site Search | Forum Search | Picture Search | Site Map ]

 

Help Desk: (65) 9785-3171

 

 

 

Highlights

Extend your learning with Master Cecil Lee's Applied Feng Shui Made Easy Book.

" Real People, Real Life, Real Situation " - Learn from thousands of actual case studies at our popular Free Advice Forum.

" Worry-Free Professional Feng Shui Services " - from the authors of Geomancy.Net

[ Award & Accolades ]
 

Site Navigation

Home
   Feng Shui Freebies
   Feng Shui Resources
     Fun with Feng Shui
     Major FS Theories
     Feng Shui Articles
     Feng Shui Advice
     FS Reference
     Slide Show
     Calendar of Events
     Educational Polls
     Site Review
     Yearly Forecast
     Chinese Horoscope
     Popular Topic
   Picture Resources
   Chinese Horoscope
   Personalised Reports
   e-Bookstore
   Feng Shui Courses
   Products & Services
   Consultation Services
   Shop @ Geomancy
   Students Services
   Events @ Geomancy
   Webmaster
   FAQ / Help
   About Us
   Contact Us
   Members Area
   Ask Expert Forum
   Search Website
   Site Tools
   Others Areas
   Live Chat
   Recommend Us
   Site Map